New hope for Lakewood Equestrian Center after initial lease negotiations fall through
After negotiations broke down with its first choice for operator, the city quickly pivoted to a proposal from a Lakewood resident with a community-focused vision for the facility.
At 10 years old, Cindy Flavin developed a passion for horses. Being one of four children of a single mother, however, did not afford her the opportunity to ride — at least not by conventional means.
“I started working for free — when children could be slave labor — at Azusa Canyon every weekend, 10 to 12 hours a day, just for the opportunity to ride and learn,” said Flavin, who is now 56.
As a student in her teens, she worked for a jumper trainer. At 17, she purchased and broke her own horse, which she owned until she was 32. At that point, she took a break from the equestrian life for several years but re-entered the world of horses when her daughter was 18 months old.
“I wanted that to be part of her life,” Flavin said, adding that now, at 18, her daughter is an accomplished rider who took second place at the U.S. Hunter Jumper Association nationals in Las Vegas last month.
Now, with decades of equestrian knowledge under her belt and fueled by her passion for horses, Flavin aims to save the Lakewood Equestrian Center, giving other equestrian enthusiasts hope that the cherished facility won’t be shuttered at the end of the year if the city allows her to take the reins.
Failed negotiations
With the city-owned and operated equestrian center losing money, city staff during a June 25 City Council meeting presented officials with two options: increase the budget and probably continue to operate in the red or shut it down. During the meeting, dozens of residents and horse owners lambasted officials for even considering closing the facility.
In the end, the City Council asked for more options. City staff, in turn, issued a request for proposals from potential operators, from which it received five responses.
After sifting through more than 300 pages, city staff made its selection and began negotiating with Jerry Harris, a man with decades worth of equestrian center operations experience, including the establishment of the Rancho Sierra Vista Equestrian Center in 1981.
In his proposal, Harris said he had a “sophisticated vision for what the Lakewood Equestrian Park can be,” which included a hacienda aesthetic reminiscent of early California estates throughout the property.
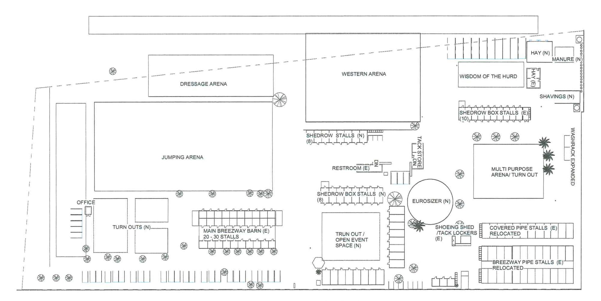
Harris’s plan for the center was bold. The centerpiece of the proposal was a large multi-use barn that could be used for weddings and other events. It also called for an expansion of the petting zoo, increasing the number of boarding stalls, a polo arena, a family picnic area featuring bocce ball courts, horseshoe pits and cornhole boards, and more.
Some stakeholders thought the vision too bold, questioning how all the proposed amenities would be squeezed into the 19-acre space, nearly half of which is owned by Southern California Edison, which is not keen on further development of the property.
In addition to the physical facility improvements, Harris proposed more instruction options, including roping, sorting and penning as well as hosting rodeo events that feature competitions using those skills. Harris also was looking to increase community outreach and programming for schools, the Special Olympics, charity events, churches, the Boys and Girls Club, scouts and others.
After weeks of negotiating, however, Harris said the city made last-minute changes to the timeline, which, combined with other issues he declined to disclose, made it impossible for him to meet the city’s demands.
“I was totally excited,” Harris told the Watchdog. “We saw a bright future there. We had nothing but optimism in our eyes for what that place could be — and should be.”
The city notified Harris of the decision over the holiday weekend.
A new hope
As the city cut ties with Harris, staff simultaneously reached out to Cynthia Flavin, who also submitted a proposal to operate the equestrian center.
Despite being in the midst of a long holiday weekend, Flavin jumped at the opportunity.
“They’re working very quickly,” Flavin told the Watchdog. “I have the contract in my hand. I don’t foresee any hiccups.”
Unlike Harris, who is based in San Juan Capistrano, Flavin and her husband Sean are Lakewood residents, having moved to the city from Marina Del Rey in 2021. The couples’ horses were being trained in Cerritos and they were tired of the drive, she said.
“I feel bad for Jerry, but I do think I’m the right person for Lakewood,” Flavin said. “I live in Lakewood. It’s my community. My horses will be there.”

As a resident, Flavin said it was important to her that the center have a community focus that emphasizes engagement, not just from local horse owners and riders, but all nearby residents from all socioeconomic backgrounds.
Demonstrations and study groups are two ways Flavin said the community could engage with the animals that many city slickers may never experience otherwise. The showcases and seminars would be free for Lakewood residents and low-cost for others, making horses accessible to all, she said.
In her proposal, Flavin outlined numerous educational and competitive opportunities, including art classes, a pony club to educate beginning riders and the Interscholastic Equestrian League, which helps students form school teams to compete against other league schools, as well as other outreach programs and volunteer opportunities.
Flavin also plans to introduce a therapeutic riding program, a training program for thoroughbreds whose racing days are over, expanded English/hunter-jumper, dressage, eventing and western lessons, and an import horse quarantine service.
Similar to Harris’s proposal, Flavin plans on constructing a small u-shaped barn that will include three eight-stall shed rows, with a courtyard suitable for small weddings or other events as well as updating existing facilities.
Overall, Flavin’s plan includes around 100 stalls for horse boarding, with some existing stalls being relocated and upgraded to make better use of the space.
Other proposed improvements include a tack and sundry shop where boarders and community members can buy horse-related items and personal necessities as well as snacks and beverages; vending machines; horse laundry with coin-operated machines for boarders to wash blankets, saddle pads, leg wraps, grooming towels, etc.; and a horse spa, dubbed the Dalona Day Spa in honor of Flavin’s late mare who died a year and a half ago, with a Pony Jet bathing system, a modern hot walker for controlled exercise, and other therapeutic equipment.
In addition to programming for the community, Flavin plans to install public seating, including picnic tables, outdoor furniture and shade sails throughout the facility to encourage visitors for “peaceful relaxation or artistic endeavors such as painting, drawing and photography.”
“The public needs to be welcome to come and enjoy the horses, enjoy watching people ride them,” Flavin said in an interview.
“Boarders who do not see the value in welcoming the public would be better served by boarding at a private facility where access is restricted,” she wrote in her proposal, adding that Lakewood residents will have priority when stalls become available for boarding.


Other community-centric additions include a meandering walking and bridle path through the property lined with diverse plants and a community chicken coup where locals can purchase farm-fresh eggs from a trusted, local source.
While Harris’s plan was to be funded through various business loans, Flavin and her husband plan to fund initial improvements themselves with a $250,000 home equity line of credit, a Home Depot credit card with a $75,000 limit, a Restoration Hardware credit card with a $50,000 limit and other personal lines of credit.
“We’re very hands-on people,” Flavin said of her and her husband. “We’re not afraid to get our hands dirty, we know how to manage people.”
A business loan will be needed to get her vision across the finish line, with total cost estimates around $722,000, according to Flavin, who will manage the day-to-day at the center, foregoing any salary until it is operating in the black.
What's next?
In an email Tuesday, city spokesperson Bill Grady said staff expects to bring the contract to the City Council for consideration during its Dec. 10 meeting. If the contract is not finalized before the meeting, Grady said the equestrian center would not close on Jan. 1, but that the city would continue operations “for a reasonable time” while the details are ironed out and the transfer is completed.
“The contract looks completely reasonable to me. It protects the city,” Flavin said. “It’s not offensive to me. As a resident of Lakewood, I would expect them to give me a contract to protect the rest of the citizens of Lakewood.”
Flavin’s residency and history of horse ownership make her an ideal operator of the facility, according to Jenny Meeker, president of the nonprofit Friends of the Lakewood Equestrian Center, which also submitted a proposal to the city.
“She’s the best of both worlds,” Meeker said. “On the one hand, she understands the horses and their needs, but on the other hand, she understands the community that she lives in.”
While Flavin's proposal does not have everything on Meeker’s wishlist, she said she feels good about it overall, adding that she is confident Flavin will actively work with the nonprofit and other stakeholders to make the facility nicer, safer and more accessible to all.
“She knows how special Lakewood Equestrian Center is to the city and community and … she has a vested interest in it,” Meeker said. “I’m actually pretty excited to see how it all looks at the end.”


Editor's note: This story has been updated to correct Flavin's job as a working student as well as to clarify how much Flavin plans to spend on the center.
We need your support.
Subcribe to the Watchdog today.
The Long Beach Watchdog is owned by journalists, and paid for by readers like you. If independent, local reporting like the story you just read is important to you, support our work by becoming a subscriber.